施設・居室案内
居室
施設
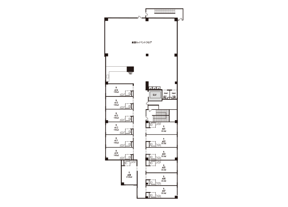
フロアマップ
関連施設
-

ホスピタルメント文京グラン
2023年4月オープンの文京区千駄木の介護付有料老人ホームです。
- 住所:
- 東京都文京区千駄木3-14-17
- 電話:
- 0120-178-205
詳しく見る >
-

ホスピタルメント青山
2022年4月オープンのペット対応可能な介護付有料老人ホームです。
- 住所:
- 東京都渋谷区渋谷4−3-3
- 電話:
- 0120-073-567
詳しく見る >
-

ホスピタルメント代々木上原
2022年4月オープンの渋谷区代々木上原エリアの介護付有料老人ホームです。
- 住所:
- 東京都渋谷区西原2-13-1
- 電話:
- 0120-073-567
詳しく見る >
-

ホスピタルメント白金
2021年8月オープンの港区白金の介護付有料老人ホームです。
- 住所:
- 東京都港区白金3−22−6
- 電話:
- 0120‐033‐010
詳しく見る >

























